Two independent two-storey houses 128 sq.m each were designed in a 332 sq.m site, in area of Geraka in the Attica region.

The two houses are vertically connected with the areas that hosts their individual entrances and staircases making them face to two different roads so as to be functional and visually independent.

 

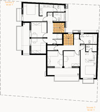
    Living areas in both houses are organized on the ground floor and extend onto a green open landscape. Through the sliding glasses the living areas can be converted into a large outdoor space. The second floors hold bedrooms and bathrooms.

 

    The pool in the front courtyard is the common relaxation area of the two residences.

 

Back to Projects

To enlarge the pictures, simply click on the one you wish to enlarge.